Subdivisiones · Regularizaciones · Obra nueva · Gestión municipal
PLANOS MUNICIPALES

PLANOS · SUBSISTENCIA · OBRA NUEVA

Planos y trámites municipales para que puedas vender, regularizar, escriturar o habilitar sin vueltas.

Planos de subsistencia y regularización

Planos de subsistencia y regularización

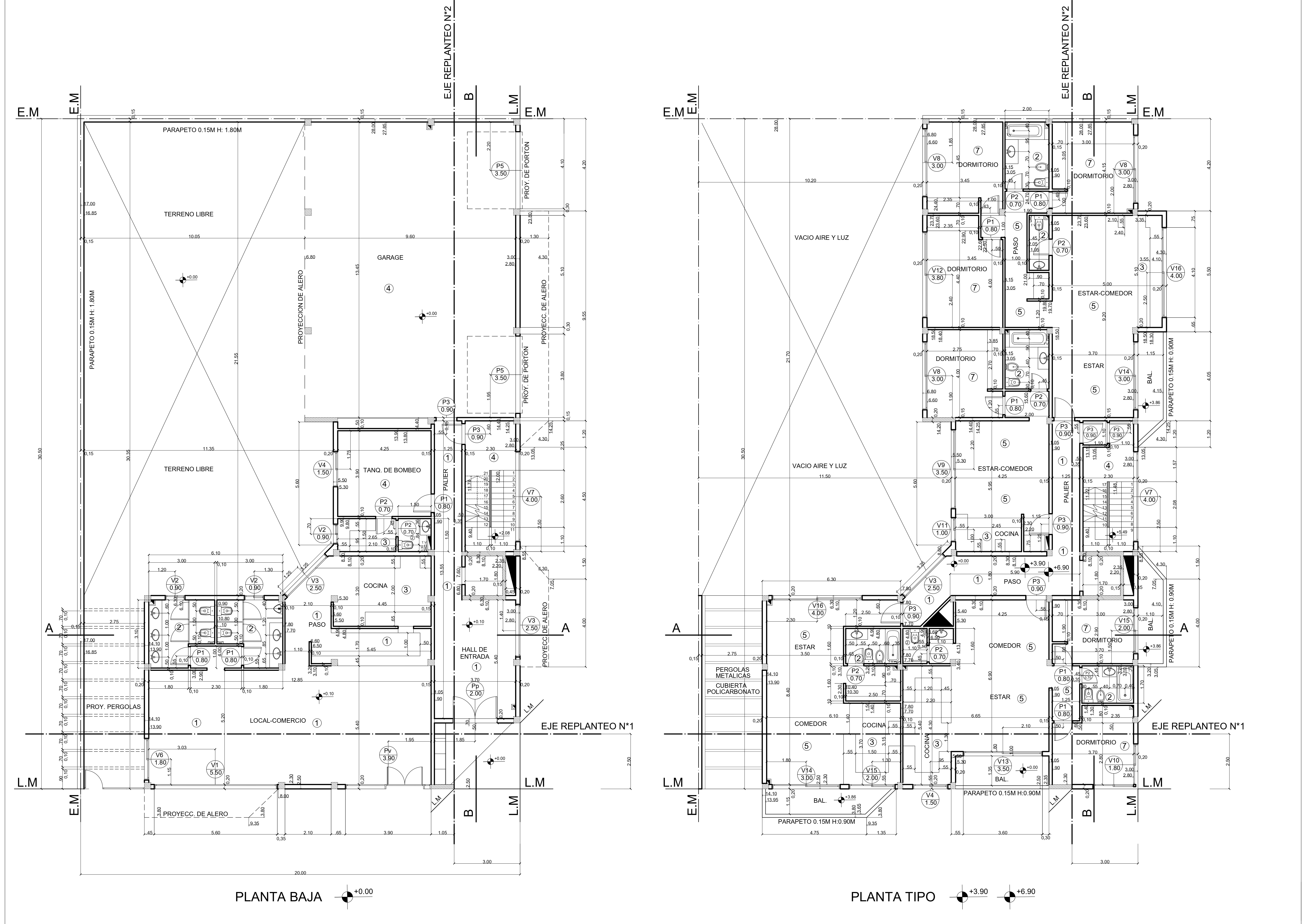
Relevamiento + planos de estado actual para regularizar metros no declarados. Ideal para venta, sucesión, escritura o PH.

Obras nuevas y ampliaciones

Obras nuevas y ampliaciones

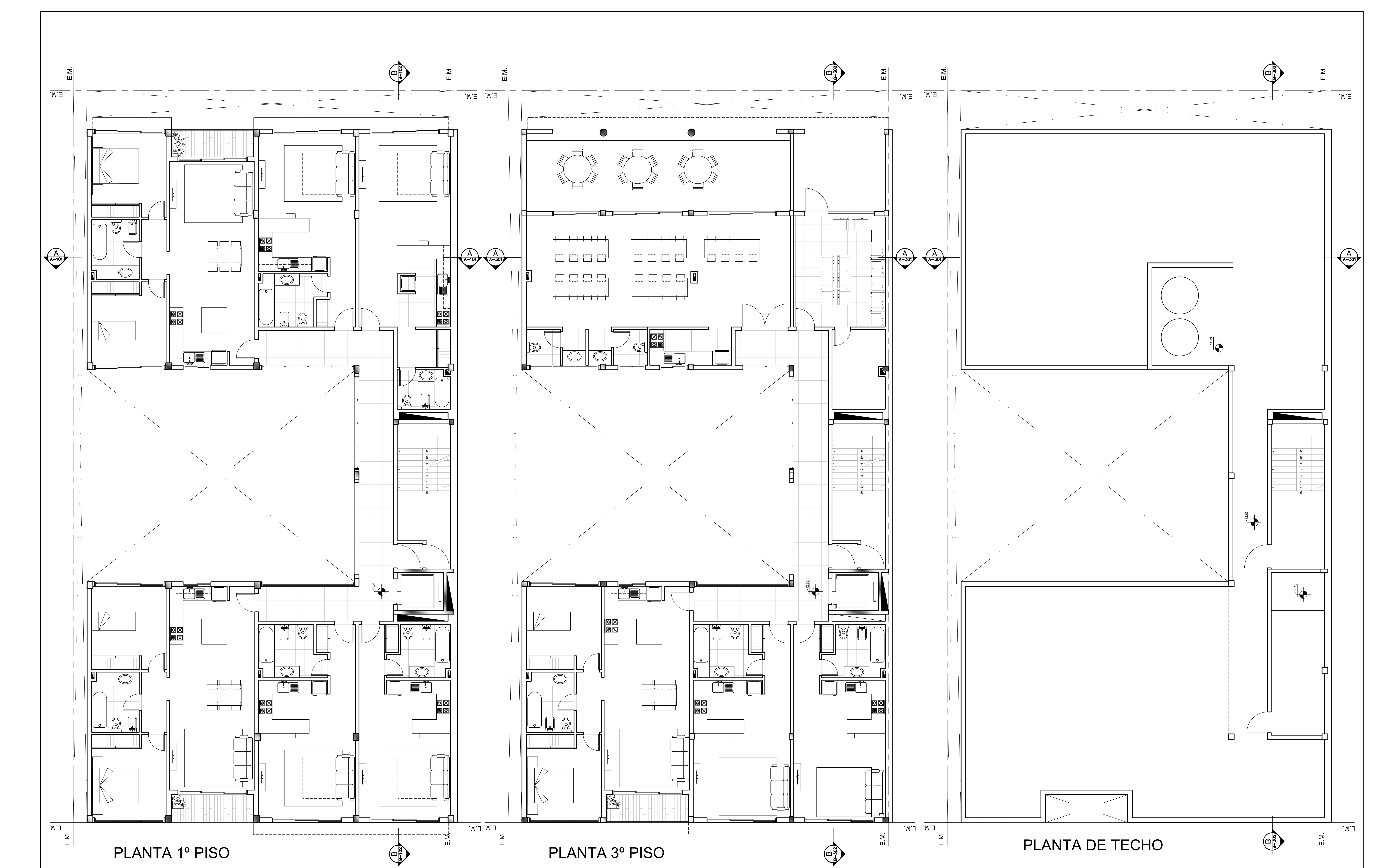
Planos municipales para obra nueva / ampliación. Plantas, cortes, fachadas y superficies según normativa (FOS/FOT).

Subdivisiones y PH

Subdivisiones y PH

Documentación y planos para iniciar subdivisión / propiedad horizontal. Te guiamos según el municipio y el caso.

Locales, depósitos y habilitaciones

Locales, depósitos y habilitaciones

Planos + documentación básica para habilitación municipal de comercios, oficinas y depósitos.

Dibujo + gestión municipal

Dibujo + gestión municipal

Armado de carpeta, carga de datos y seguimiento del trámite hasta inspección y sellado final.

Firma profesional + asesoramiento

Firma profesional + asesoramiento

Revisión de antecedentes y asesoramiento claro. Firma profesional cuando aplique según municipio y normativa.

¿Tenés dudas o querés presupuesto sin cargo? Contanos tu municipio y qué necesitás.